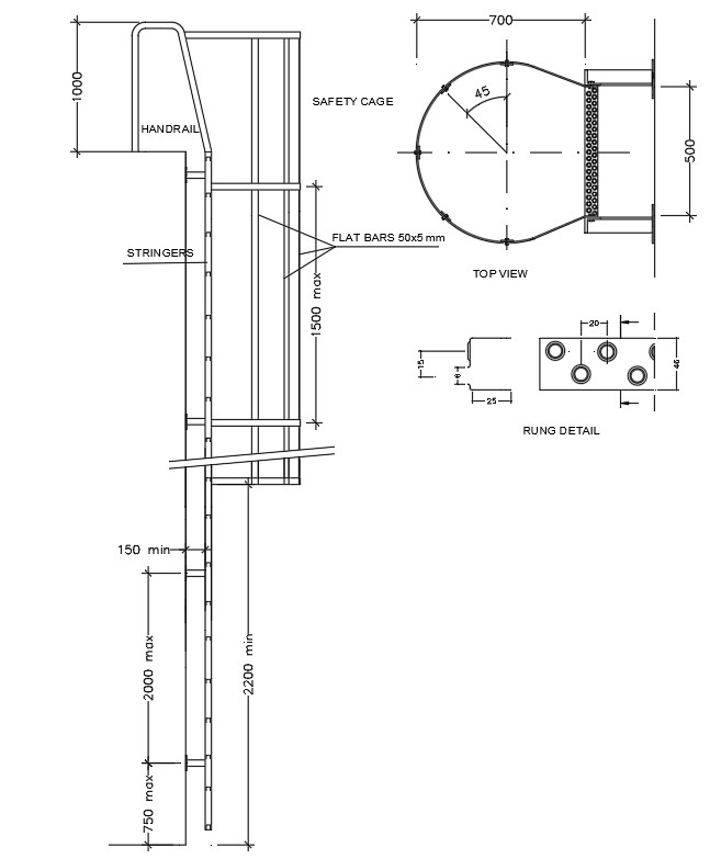
ASCO INDUSTRIAL GRATINGS ladders are made according to EN ISO 14122-4.
Ladders are made of structural steel S235JR according to EN 10025 and hot-dip galvanized according to EN ISO 1461, with or without:
railing, safety cage, secure stair access.
ASCO INDUSTRIAL GRATINGS ladders are made according to EN ISO 14122-4.
Ladders are made of structural steel S235JR according to EN 10025 and hot-dip galvanized according to EN ISO 1461, with or without:
railing, safety cage, secure stair access.

For supplementary information contact ASCO INDUSTRIAL GRATINGS – technical department.